- Woonoppervlakte
- Circa 106 mยฒ
- Perceeloppervlakte
- Circa 756 mยฒ
- Bouwjaar
- Gebouwd in 1967
- Aantal kamers
- 5 kamers (4 slaapkamers)
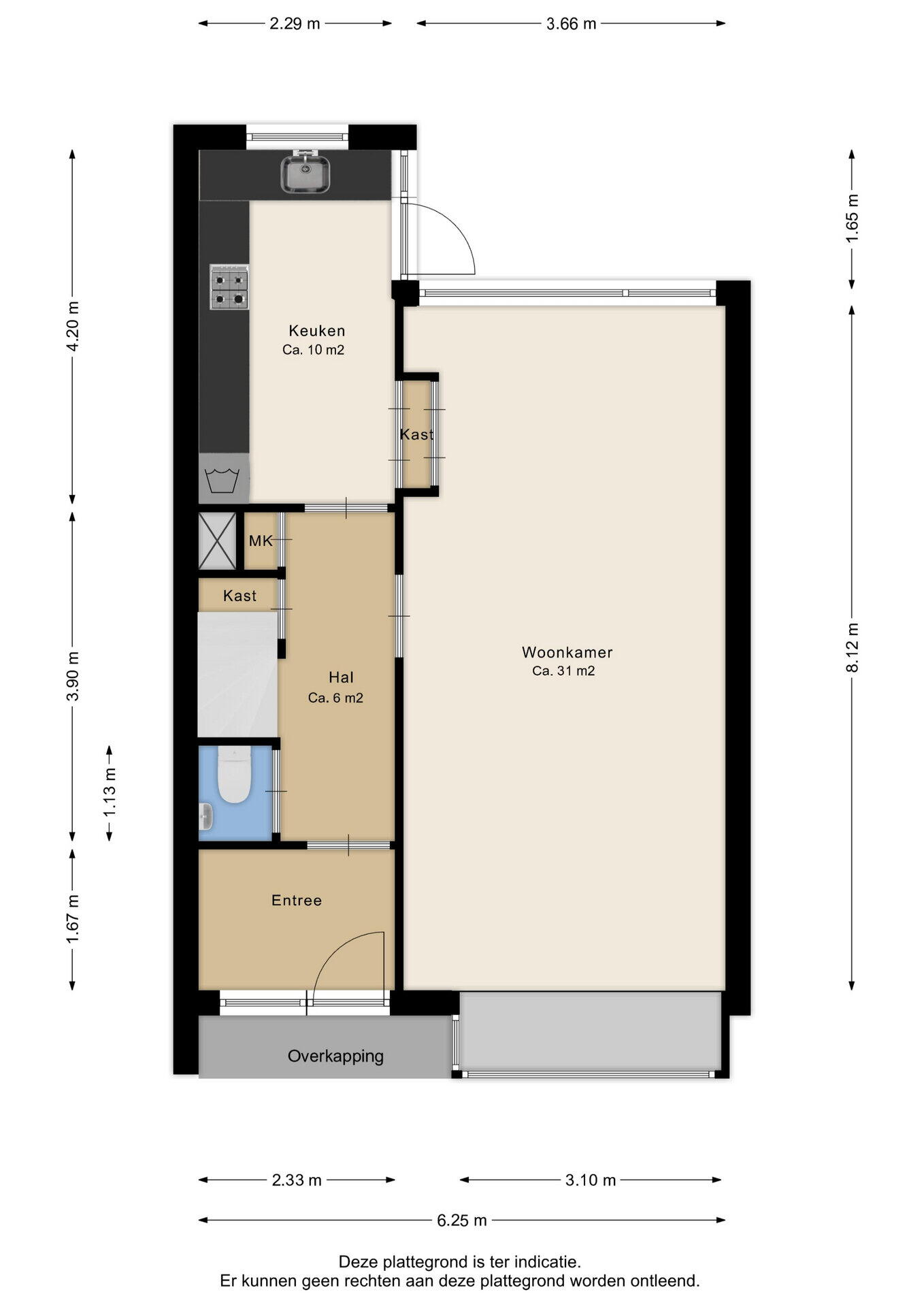
BEGANE GROND:
Entree in tochtportaal met toegang tot de hal met toilet, provisiekast, meterkast en trapopgang. De woonkamer (ca. 31m2) betreft een doorzonkamer, deze is heerlijk licht en ruim bemeten. De keurige keuken (ca. 10m2) in hoekopstelling is voorzien van een 4-pits fornuis met afzuigkap, een combi-magnetron en een koel-vriescombinatie. De achterdeur geeft toegang tot de achtertuin.
EERSTE VERDIEPING:
Overloop met toegang tot de 4 slaapkamers (resp. ca. 6, 7, 11 en 11m2) en de badkamer. Eรฉn slaapkamer is uitgerust met een balkon (ca. 4m2). De badkamer heeft een moderne kleurstelling en vloerverwarming. Daarnaast is deze voorzien van een douche, een ligbad, een wastafel met meubel en een tweede toilet.
TWEEDE VERDIEPING:
Via vlizotrap bereikbare bergzolder.
TUIN:
De zonnige achtertuin is gelegen op het oosten en is ook via een achterom bereikbaar. De tuin is onderhoudsvriendelijk aangelegd en ruim.
STERKE PUNTEN EN BIJZONDERHEDEN:
- Goed onderhouden woning;
- Met berging en garagebox;
- Voorzien van vier slaapkamers;
- Vijfde slaapkamer mogelijk;
- Ruime tuin met eigen achterom;
- Gelegen nabij uitvalswegen en voorzieningen.
Overdracht
- Vraagprijs
- โฌ 299.500 k.k.
- Status
- Verkocht
- Aanvaarding
- In overleg
Bouw
- Object type
- Eengezinswoning, tussenwoning
- Soort bouw
- Bestaande bouw
- Bouwjaar
- 1967
- Soort dak
- Zadeldak bedekt met pannen
Oppervlakte en inhoud
- Woonoppervlakte
- 106 mยฒ
- Perceeloppervlakte
- 756 mยฒ
- Inhoud
- 443 mยณ
- Overige inpandige ruimte
- 21 mยฒ
- Externe bergruimte
- 30 mยฒ
- Gebouwgeb. buitenruimte
- 7 mยฒ
Indeling
- Aantal kamers
- 5 kamers (4 slaapkamers)
- Aantal badkamers
- 1 badkamer
- Badkamervoorzieningen
- Ligbad, toilet, douche, wastafel
- Aantal woonlagen
- 3 woonlagen
- Voorzieningen
- Dakraam, glasvezel kabel
Energie
- Energielabel
- C
- Energielabel registratie
- 12-08-2020
- Isolatie
- Dubbel glas
- Verwarming
- Cv-ketel
- Warm water
- Cv-ketel
- Cv ketel
- Nefit combiketel gas gestookt (eigendom)
Buitenruimte
- Tuin
- Achtertuin, voortuin
- Afmetingen achtertuin
- 40 mยฒ (10 meter diep en 4 meter breed)
- ligging tuin
- Gelegen op het oosten en bereikbaar via achterom
Bergruimte
- Schuur / berging
- Aangebouwd steen
- Voorzieningen
- Voorzien van elektra
Garage
- Soort garage
- Garagebox
- Capaciteit
- 1 auto
- Voorzieningen
- Elektra
Parkeergelegenheid
- Soort parkeergelegenheid
- Openbaar parkeren
Energieverbruik in Assen
Energielabel deze woning
Energielabel C
Publicatie energielabel: 12-08-2020
Stroomverbruik per jaar
(Gemiddelde tussenwoning in Assen)
Gasverbruik per jaar
(Gemiddelde tussenwoning in Assen)
* Cijfers zijn afkomstig van het CBS en bedoeld als indicatie en kunnen verschillen voor deze woning
Indicatie hypotheeklasten
Eigen inleg:
Spaargeld / overwaarde
Rente:
Laagste 10-jaars rente
Laagste 10-jaars rente
2,85% - Centraal Beheer Groen... - NHG
3,22% - Centraal Beheer Groen... - 80%
Laagste 20-jaars rente
3,19% - Centraal Beheer Groen... - NHG
3,31% - Centraal Beheer Groen... - 80%
Laagste 30-jaars rente
3,34% - Centraal Beheer Groen... - NHG
3,47% - Centraal Beheer Groen... - 80%
Hypotheek:
Bruto maandlasten: โฌ 0 p/m
Netto maandlasten: โฌ 0 p/m
Hoe berekenen we dit?
Het rentepercentage is gebaseerd op de laagste 10-jaars vaste rente voor รฉรฉn hypotheekdeel. De vermelde rente (2.85% met NHG) is gecontroleerd op 07-04-2025. Deze berekening is gebaseerd op een annuรฏteitenhypotheek die volledig wordt afgelost, waarbij de maandlasten gedurende de gehele looptijd gelijk blijven. De werkelijke rente en netto maandlasten kunnen variรซren, afhankelijk van uw persoonlijke situatie en de hypotheekverstrekker. Raadpleeg een financieel adviseur voor een nauwkeurige berekening en advies. Aan deze berekening kunnen geen rechten worden ontleend; het dient enkel als indicatie.
Documentatie
Kadastrale kaart
Leefomgeving
Vragenlijst
Lijst van Zaken
Plattegronden PDF
BAG uittreksel
Brochure
Bezoek onze website
Bezichtiging
Bod uitbrengen
Waardebepaling
Zoekopdracht
Alles downloaden
Zonnegrenzen bekijken
Op de kaart
Inwoners in Assen
Cijfers voor postcodegebied 9402
- Totaal aantal inwoners
- 8215 inwoners
- Mannen
- 48%
- Vrouwen
- 52%
Inwoners in Assen
Cijfers voor postcodegebied 9402
- tot 15 jaar
- 14%
- 15 tot 25 jaar
- 10%
- 25 tot 35 jaar
- 22%
- 45 tot 65 jaar
- 27%
- 65 en ouder
- 27%
Huishoudens in Assen
Cijfers voor postcodegebied 9402
- Eenpersoons zonder kinderen
- 48%
- Meerpersoons zonder kinderen
- 28%
- Huishoudens zonder kinderen
- 76%
Huishoudens in Assen
Cijfers voor postcodegebied 9402
- Huishoudens met รฉรฉn kind
- 7%
- Huishoudens met meerdere kinderen
- 16%
- Huishoudens met kinderen
- 23%
Woningen in Assen
Cijfers voor postcodegebied 9402
- Woningen voor 1945
- 9%
- Woningen tussen 1945 en 1965
- 18%
- Woningen tussen 1965 en 1975
- 33%
- Woningen tussen 1975 en 1985
- 12%
- Woningen tussen 1985 en 1995
- 3%
Woningen in Assen
Cijfers voor postcodegebied 9402
- Woningen tussen 1995 en 2005
- 9%
- Woningen tussen 2005 en 2015
- 12%
- Woningen na 2015
- 4%
- Huurwoningen
- 50%
- Koopwoningen
- 40%
Overige in Assen
Cijfers voor postcodegebied 9402
- Gemiddelde WOZ waarde
- โฌ 161.000,-
- Personen onder de 65 met uitkering
- 13%
Overige in Assen
Cijfers voor postcodegebied 9402
- Adressen per kmยฒ
- 2406
- Stedelijkheid (schaal 1 op 5)
- 80%
Korte feiten over Assen
Assen is een gemeente en stad in het noorden van de Nederlandse provincie Drenthe, waarvan het de hoofdstad is.
Groenhout Makelaars
Indien u vragen heeft of u wilt een bezichtiging inplannen, dan kunt u gebruik maken van het formulier hiernaast. Er zal daarna op korte termijn contact met u worden opgenomen.
Brink 4
9411 KR, Beilen
0593 23 21 21 midden-drenthe@groenhoutmakelaars.nl www.groenhoutmakelaars.nlContact opnemen
Dรฉ makelaar in Midden-Drenthe
Bij Groenhout Makelaars Midden-Drenthe staan we klaar om je te ondersteunen bij de verkoop van je huidige woning of de aankoop van je droomhuis. Onze diensten beperken zich niet tot Midden-Drenthe; we zijn ook actief in omliggende gemeentes. We hechten veel waarde aan flexibiliteit, dus afspraken zijn ook mogelijk in de avonduren en op zaterdagen. Dankzij zijn achtergrond in de financiรซle sector beschikt Richard over uitgebreide kennis op financieel gebied en hij is uiteraard op de hoogte van alle marktontwikkelingen. Als creatieve makelaars streven we ernaar om gestelde doelen op originele wijze te realiseren. We zijn gepassioneerd en gedreven in alles wat we doen, en we kennen de vastgoedsector door en door. Onze aanpak gaat verder dan de standaard kantooruren en omvat puur ondernemerschap. We richten ons niet alleen op zakelijke aspecten, maar ook op sociale elementen. We zijn alert op nieuwe trends en passen deze toe in onze werkwijze. Onze expertise staat garant voor jouw gemak.
Het is onze passie en ons sterke punt om uitdagingen aan te gaan en zo tot een optimale dienstverlening te komen, van begin tot eind en zelfs daarna! Neem eens een kijkje bij onze recensies; wellicht nodigt dit je uit voor een vrijblijvend gesprek?
Nieuwste reviews
-
Drijberseweg 36 a47
They where very helpful in every way ๐๐๐๐๐๐๐๐๐๐๐๐๐๐๐๐๐๐๐๐๐๐๐๐๐๐๐๐๐๐๐๐๐๐๐๐๐๐๐๐๐๐๐๐๐๐๐๐๐๐๐...
-
Westerstraat 18
Het gehele traject met betrekking tot de verkoop van onze woning hebben wij als zeer prettig ervaren. De makelaar en collega's op kantoor re...
-
Meester Haddersstraat 12
Fijne makelaar en niet te vergeten mensen op kantoor die ons bij moeilijke beslissingen hebben geholpen en gesteund. Niet alleen van 9 - 5 m...